Montpelier Road, Dunkirk, Nottingham, NG7

£825 PCM | Available

1 bedroom Flat To Let

or call 0115 9222222
Property Description

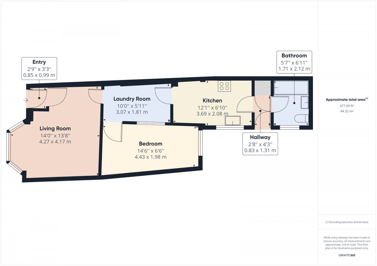
A one bedroom ground floor apartment available to let in the Dunkirk area. Conveniently located closed to the QMC, Nottingham University and tram links into the City and surrounding areas. The property comprises of lounge, dining room, kitchen, bedroom and bathroom. Further benefits include gas central heating and double glazing. Available on an unfurnished or part-furnished basis. Permit parking. Council Tax Band A


Additional Information
Council Tax Band:
A

Rooms
Entrance Hall
Entering via a uPVC door, laminate floor with door leading to:
Sitting Room
Laminate flooring, radiators, furnishing include; sofa and chair . uPVC bay window to front elevation.
4.35m x 4.21m
Kitchen
Fitted with a range of beech effect wall and base units, roll top work surfaces incorporating a stainless steel sink and drainer and tiled splashbacks. Appliances include gas hob, electric oven, extractor fan, washing machine and fridge freezer. uPVC window to rear elevation. Access to:
Rear Lobby
Providing entrance via a uPVC door to rear garden.
Bedroom
Double bedroom with laminate flooring, furniture includes double bed with mattress and wardrobe. uPVC double glazed window.
4.42m x 3.20m
Bathroom
Comprising of white bathroom suite, low level WC, pedestal wash basin and bath with shower over. Part tiled wall, tiled flooring and wall mounted towel rail. uPVC double glazed window.
External
The front of the property is set back behind a stone wall with paved area. To the rear is a paved yard.

Montpelier Road, Dunkirk, Nottingham, NG7

Struggling to find a property? Get in touch and we'll help you find your ideal property.