Standout Features
- Two double bedrooms with their own En-suite
- Off street parking
- Downstairs WC
- Prime location
- Rear Garden
- Great Transport links
Property Description
Introducing this charming 2-bedroom terraced house located in a sought-after area with allocated residents and visitor parking!
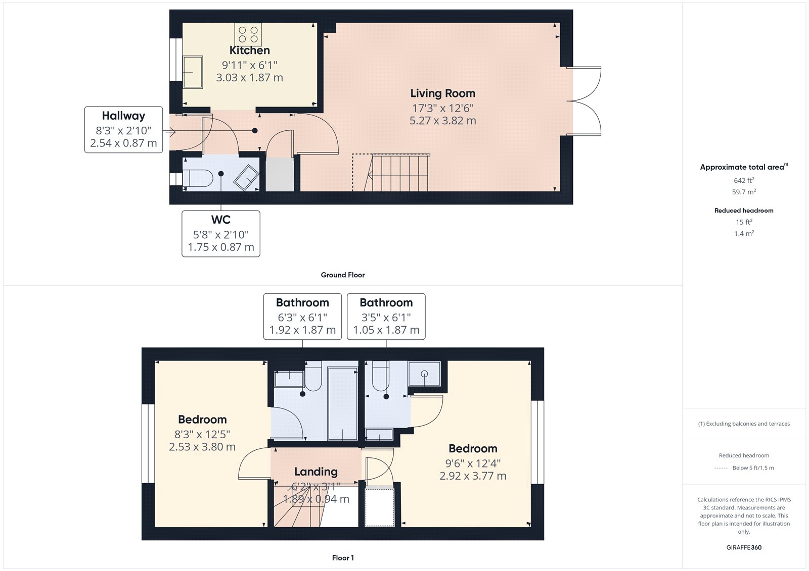
The ground floor comprises a good sized living room with French doors out to the rear garden, well-appointed kitchen and downstairs WC and storage cupboard. The first floor boasts two generously sized double bedrooms, both of which have the convenience of their own En-suite!
The outdoor space includes a private garden, providing a very low maintenance outdoor space. Situated in a convenient location with easy access to local amenities, schools, and transport links, this property offers a perfect balance of comfort and convenience.
Don't miss the opportunity to make this house your home. Contact us today to arrange a viewing and experience the charm of this delightful property firsthand.
Additional Information
Rooms
Entrance Hall
Entrance to the property with laminate dark wood effect flooring, access to all downstairs rooms and the storage cupboard.
2.51m x 0.86m
Kitchen
A mix of wall and base units with light blue doors and marble effect worktop, fitted oven and hob, extractor fan for the oven, tiled splashback, sink with mixer tap, double glazed window.
3.02m x 1.85m
WC
Located off the entrance hall, low level WC and hand basin, vinyl flooring.
1.73m x 0.86m
Living Room
Located towards the back of the property with dark wood effect laminate flooring, access up the stairs, feature fireplace, French doors out to the rear garden.
5.26m x 3.8m
Bedroom
Master bedroom carpeted throughout, double glazed window, storage cupboard, access to ensuite.
2.9m x 3.76m
Ensuite Bathroom
Located off the master bedroom, low level WC and hand basin, walk in shower cubicle.
1.04m x 1.85m
Bedroom
Double bedroom carpeted throughout, double glazed window, access to ensuite.
2.51m x 3.78m
Ensuite Bathroom
Located off the second bedroom, fitted bath with separate taps, tiled around the bath, low level WC and hand basin with vanity unit.
1.9m x 1.85m
Mortgage calculator
Monthly Repayments:
£
Are you ready to take the next step?
Speak with one of our team and we can help you find out your affordability.
All fields must be numbers
Calculate Your Stamp Duty
Results
Stamp Duty To Pay:
Effective Rate:
| Tax Band |
% |
Taxable Sum |
Tax |
Hook Close,
Beeston,
Nottingham,
Nottinghamshire,
NG9
Struggling to find a property? Get in touch and we'll help you find your ideal property.