Whinfield Road, Walton, Liverpool, Merseyside, L9

Offers over £120,000 | SSTC

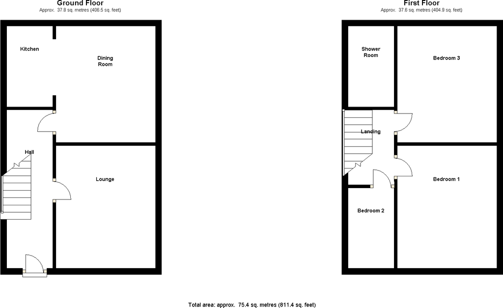
3 bedroom House Sold STC

or call 0151 5230800
Property Description

This 3-bedroom terraced house, situated in a sought-after neighbourhood, is in need of some updating. The property offers convenient on-street parking and features a charming patio area, perfect for outdoor relaxation. Inside, you will find good-sized rooms including a spacious living room, a kitchen with integrated appliances, and three well-appointed bedrooms. Ideal for a family looking to put their own stamp on a property, this house offers great potential. Contact us today to schedule a viewing. Freehold Council Tax Band A

Buyer Notice: In line with UK anti-money laundering laws, all accepted offers require ID and source-of-funds checks via Coadjute’s Assured Compliance® service (£54.99 inc. VAT per purchaser). This legal check confirms funds are legitimate, helping to prevent fraud and protect both buyer and seller throughout the transaction


Additional Information
Tenure:
Freehold

Utilities
Electricity:
Mains Supply
Sewerage:
Mains Supply
Heating:
Double Glazing,
Gas Central

Mortgage calculator

Calculate Your Stamp Duty
£
Results
Stamp Duty To Pay:
Effective Rate:
Tax Band % Taxable Sum Tax

Whinfield Road, Walton, Liverpool, Merseyside, L9

Struggling to find a property? Get in touch and we'll help you find your ideal property.