Standout Features
- Four Bedrooms
- End Terrace
- Extended Kitchen
- Two Reception Rooms
- Two Bathrooms
- Set Over Three Floors
- Council Tax Band: B
- EPC Rating: E
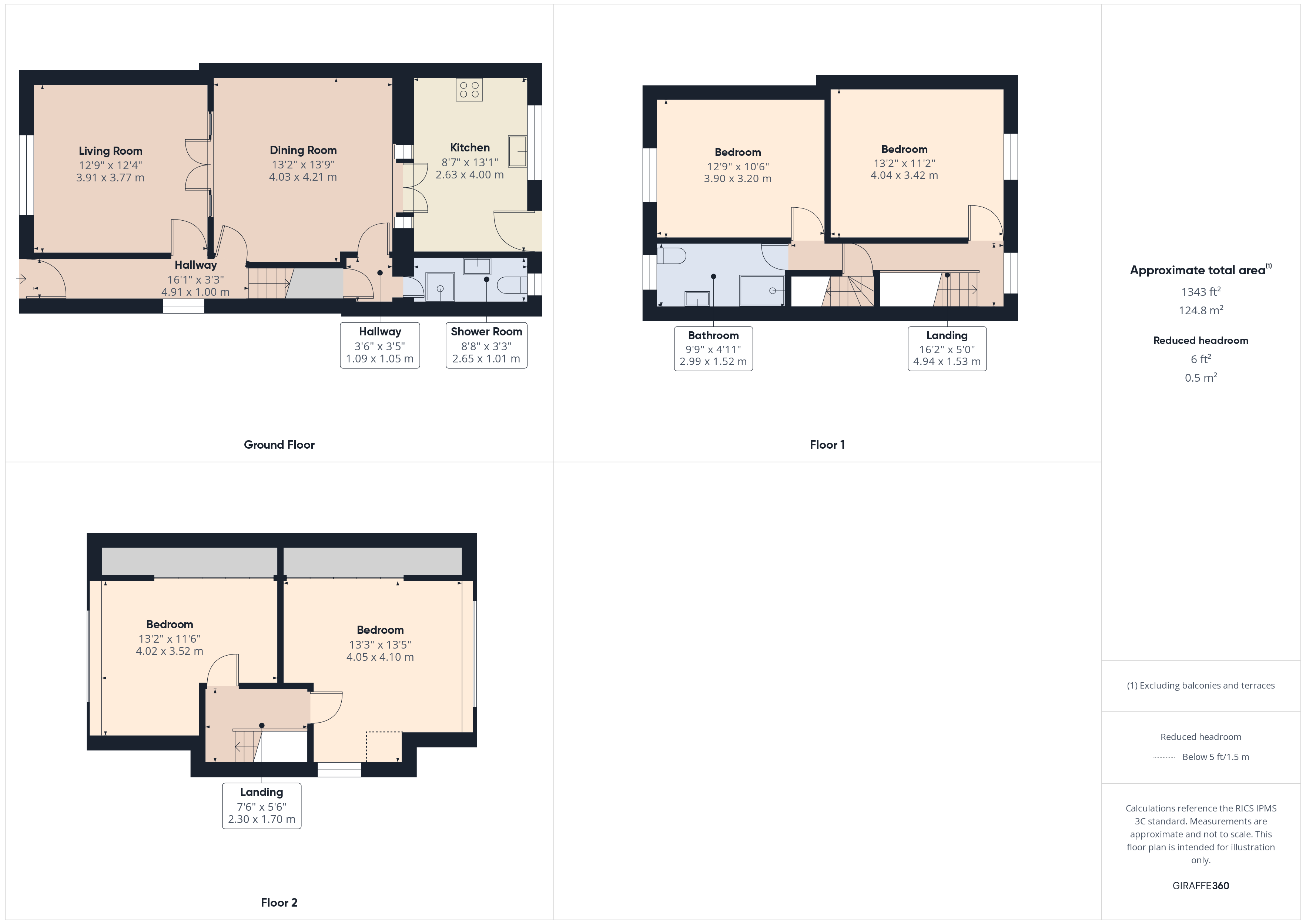
Property Description
IMPRESSIVE, WELL PRESENTED END TERRACED HOUSE. Set over THREE FLOORS, with TWO RECEPTION ROOMS, TWO BATHROOMS & FULL KITCHEN EXTENSION.
Situated within this popular residential location with many local amenities on the doorstep and good links for commute to the city centre, university and ST. Lukes Hospital. Benefitting further from Gas Central Heating and Double Glazing.
Briefly comprising; Entrance Hall, Living Room, Dining Room, Kitchen Extension and Shower Room to the Ground Floor. The First Floor holds Two Bedrooms and the House Bathroom with large Dormer Bedrooms to the Second Floor. Externally, there is a small gated yard to the front & rear.
Additional Information
Rooms
Entrance Hall
uPVC door to the front elevation, wood effect laminate flooring, double glazed window to the side elevation and stairs to the first floor.
Living Room
Double glazed window to the front elevation, gas fire place, television point, telephone point and a central heating radiator.
3.96m x 3.84m
Dining Room
Double doors to the kitchen extension, wood effect laminate flooring, television point, central heating radiator and a door to the cellar (which houses the combination boiler).
4.24m x 4.04m
Wet Room
Comprising of shower, wash hand basin, low level w.c, extractor fan, tiled and a double glazed window to the rear elevation.
Kitchen Extension
Fitted kitchen with a range of base & wall units in with contrasting work surfaces, gas cooker point & extractor above, and single bowl sink & drainer with mixer tap. Plumbing for a washing machine, door to the rear elevation, skylight and a double glazed window to the rear elevation.
4.01m x 2.64m
Landing
With stairs from the hallway, a storage cupboard, double glazed window to the rear elevation and stairs to the second floor.
Bedroom One
Double glazed window to the front elevation, wood effect laminate flooring and a central heating radiator.
3.94m x 3.25m
Bedroom Two
Double glazed window to the rear elevation, wood effect laminate flooring and a central heating radiator.
4.1m x 3.45m
Shower Room
Three piece suite comprising of shower cubicle, wash hand basin, low level w.c, heated towel rail, fully tiled and a double glazed window to the front elevation.
Bedroom Three
Double glazed dormer window to the rear and side elevations, built-in wardrobes and a central heating radiator.
4.06m x 4.14m
Bedroom Four
Double glazed dormer window to the front elevation, built-in wardrobes and a central heating radiator.
4.3m x 3.5m
EXTERNALLY
To the rear of the property is a small gated yard.
Mortgage calculator
Monthly Repayments:
£
Are you ready to take the next step?
Speak with one of our team and we can help you find out your affordability.
All fields must be numbers
Calculate Your Stamp Duty
Results
Stamp Duty To Pay:
Effective Rate:
| Tax Band |
% |
Taxable Sum |
Tax |
Aberdeen Place,
Bradford,
West Yorkshire,
BD7
Struggling to find a property? Get in touch and we'll help you find your ideal property.