Property Description
New to the Market – 4 Bedroom Detached Home in the Sought-After Area of Shelf
Located in a highly desirable area, this spacious four-bedroom detached property offers an excellent opportunity for families and professionals alike.
Situated close to well-regarded schools, local parks, and a range of amenities, the property also benefits from great transport links, with easy access to the M62 and regular bus routes to both Halifax and Bradford.
The home features double glazing and central heating throughout, as well as a separate utility space, garage, driveway, and a conservatory, adding valuable extra space and versatility.
Externally, the property boasts a large rear garden, perfect for families or those who enjoy outdoor living.
Early viewing is highly recommended.
Call us today on 01422 345721 to arrange your viewing.
Additional Information
Rooms
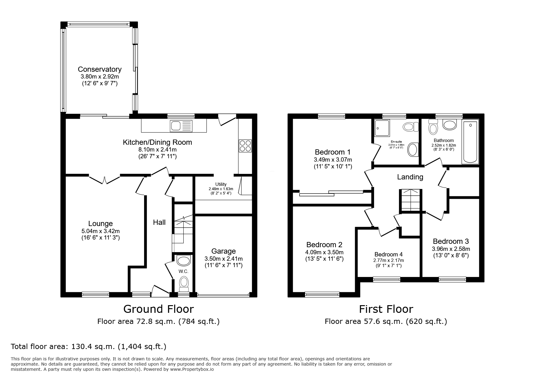
Entrance Hall
Entrance through a UPVC double-glazed door with decorative glass panel. The hallway features Karndean flooring, a white central heating radiator, and dado rail detailing to the walls. There is an understairs storage cupboard and access via three white wooden doors leading to the lounge, kitchen, and W/C.
Ground Floor W/C
Fitted with a vanity wash basin and low flush W.C. Finished with Karndean flooring, a white central heating radiator, and a frosted UPVC double-glazed window to the front elevation.
Kitchen Dining Room
A fully fitted kitchen featuring sage green wall and base units complemented by brown wood-effect work surfaces. The room includes tiled flooring throughout, tiled splashbacks, and spotlights to the ceiling. There are two white central heating radiators and a UPVC double-glazed window to the rear elevation. Appliances include a freestanding dishwasher, fridge freezer, and a gas Rangemaster cooker with a five-ring hob and black extractor fan above. Access is provided via double wooden doors leading into the lounge, a sliding patio door into the conservatory, and a UPVC double-glazed door opening to the rear yard.
Utility Space
Fitted with sage green base units and wood-effect work surfaces, providing space for a freestanding washing machine and tumble dryer. The room features tiled flooring, part-tiled walls, a ceiling light point, and a storage cupboard housing the Alpha combi boiler, approximately 4–5 years old.
Lounge
Carpeted flooring, UPVC double-glazed window to the front elevation, and a white central heating radiator. The room features an electric fire set on a marble hearth with a wooden surround, and a ceiling light point.
Conservatory
Featuring Karndean flooring and a white central heating radiator, with a sliding patio door providing access to the garden and 2 UPVC double-glazed window to the rear elevation.
1st floor Landing
Carpeted flooring with a white central heating radiator, two storage cupboards, and white wooden doors providing access to the family bathroom and four bedrooms. The landing also provides access to the insulated loft.
Master Bedroom With Ensuite
Featuring built-in sliding wardrobes with mirrored detailing, carpeted flooring, a white central heating radiator, feature wallpaper, and a ceiling light point. The room has a UPVC double-glazed window to the rear elevation and a white wooden door providing access to the en suite.
En Suite
Featuring fully tiled walls and lino flooring, the en suite comprises a shower cubicle, low flush W.C., and vanity basin. Additional features include a frosted UPVC double-glazed window to the rear elevation, a bathroom extractor fan, and a heated towel rail.
Bedroom Two
Carpeted flooring, UPVC double-glazed window to the front elevation, a white central heating radiator, and a ceiling light point.
Bedroom Three
A single room currently used as an office/study, featuring carpeted flooring, a white central heating radiator, a ceiling light point, and a UPVC double-glazed window to the front elevation.
Bedroom Four
Carpeted flooring, ceiling light point, UPVC double-glazed window to the front elevation, and a white central heating radiator.
Family Bathroom
Featuring lino flooring and a three-piece white suite with a shower over the bath. The room has fully tiled walls, a heated towel rail, a frosted UPVC double-glazed window to the rear elevation, and a bathroom extractor fan.
Mortgage calculator
Monthly Repayments:
£
Are you ready to take the next step?
Speak with one of our team and we can help you find out your affordability.
All fields must be numbers
Calculate Your Stamp Duty
Results
Stamp Duty To Pay:
Effective Rate:
| Tax Band |
% |
Taxable Sum |
Tax |
Shelf Hall Lane,
Shelf,
Halifax,
HX3
Struggling to find a property? Get in touch and we'll help you find your ideal property.