Alderman Road, Liverpool, Merseyside, L24

£900 PCM | Let Agreed

2 bedroom Flat Let Agreed

or call 0151 4281357
Property Description

A well-presented two bedroom ground floor apartment, ideally located on the popular Alderman Road in L24, offering bright and modern accommodation throughout.

A well-presented two bedroom ground floor apartment, ideally located on the popular Alderman Road in L24, offering bright and modern accommodation throughout. The property benefits from a spacious feel with neutral décor, allowing for easy personalisation. The living space is light and airy, complemented by a contemporary fitted kitchen, while the bathroom is finished in a clean, modern style. Both bedrooms are well-sized, making the apartment ideal for professionals, couples or small families. Externally, the development is set within well-maintained communal grounds and offers secure entry for added peace of mind. Conveniently situated, the property is within close proximity to local amenities, retail parks and excellent transport links, as well as Liverpool John Lennon Airport. Available to let immediately, early viewing is highly recommended to avoid disappointment.


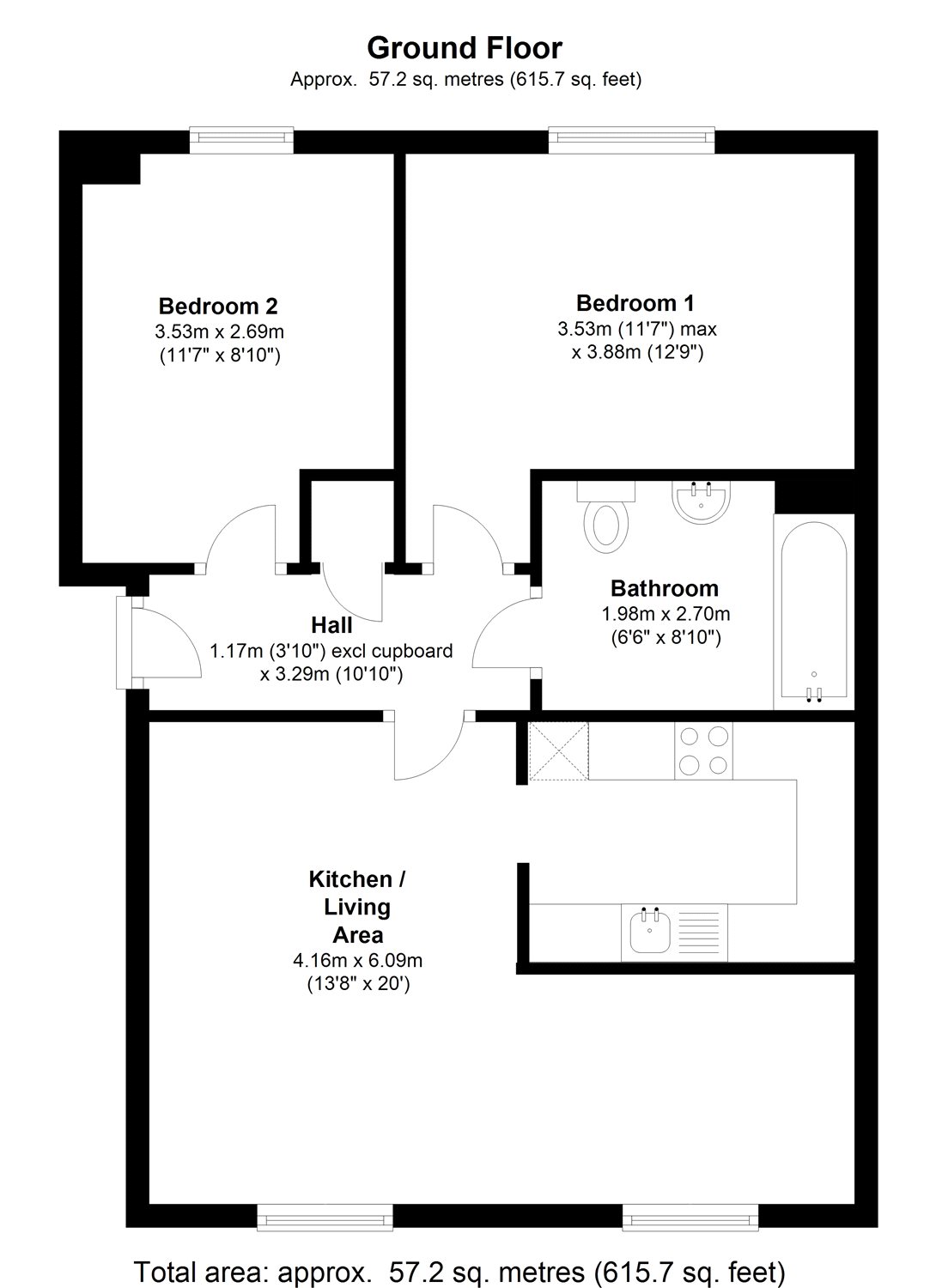
Rooms
Kitchen/ Living Area

4.16-6.09
Entrance Hall

1.17-3.29
Bathroom

1.98-2.70
Master Bedroom

3.53-3.88
Bedroom Two

3.53-2.69

Alderman Road, Liverpool, Merseyside, L24

Struggling to find a property? Get in touch and we'll help you find your ideal property.