Main Street, Badsworth, Pontefract, WF9

£285,000 | Available

2 bedroom House For Sale

or call 01977 794444
Standout Features

Property Description

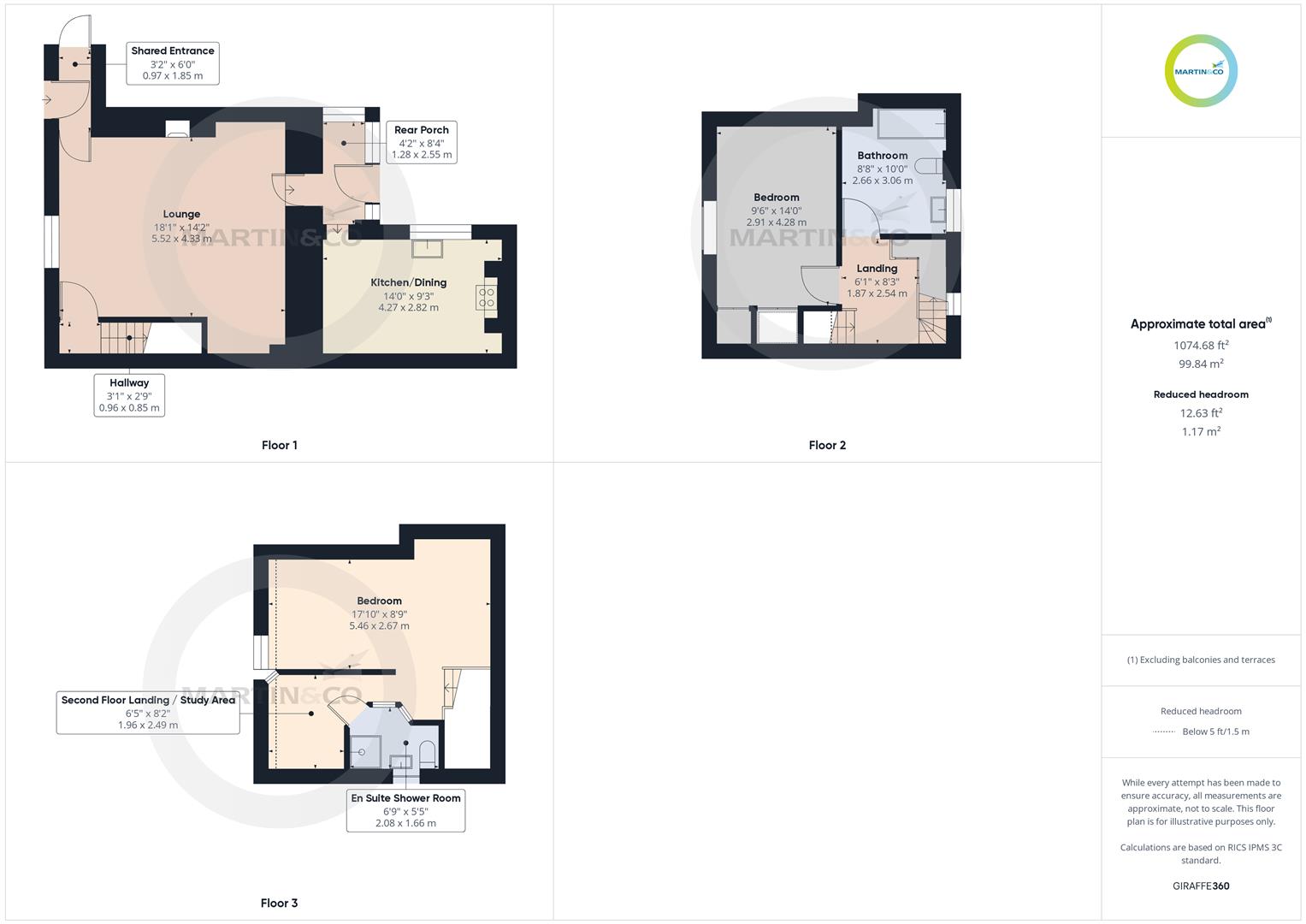
GRADE II LISTED COTTAGE – RICH IN HISTORY & CHARACTER – HEART OF BADSWORTH VILLAGE A rare opportunity to own a true piece of history — this Grade II listed mid-terrace cottage, reputedly mentioned in the Doomsday Book, is one of the oldest homes in Badsworth and brimming with period charm. Set across three floors, the property features a cosy lounge with exposed beams and wood burner, a charming kitchen/diner, and two characterful bedrooms including an attic suite with en-suite shower room. The Victorian-style bathroom boasts a roll-top claw-foot bath. Outside, a beautiful tiered garden with stone walls and terracotta tiling creates a Mediterranean-style haven — perfect for relaxing or entertaining. Ideally positioned for commuters and close to local pubs, eateries, and amenities.

The chance to own a bit of history! Reported to be mentioned in the Doomsday Book and one of the oldest properties in the historical village of Badsworth. This Grade Two listed mid terraced cottage spread over three floors exudes character and style typical of its period and simply must be viewed in order to appreciate the quaint and quirky living accommodation. As you step inside, you are greeted by a spacious yet cosy lounge adorned with exposed beams and a traditional wood burner, perfect for those snug evenings in. The attractive fitted kitchen/dining room is a delightful space for preparing meals and enjoying them with loved ones. Additionally, the rear porch provides access to the gorgeous private outside living space, ideal for soaking up the sunshine or hosting small gatherings. On the first floor, you'll find a double bedroom, featuring charming exposed beams that add to the character of the property and the split level Victorian style house bathroom with a roll edge, ball and claw foot bath. There is a further characterful attic bedroom and an en-suite shower room offering convenience and modern comfort. One of the highlights of this property is the tiered outside living space, where the old stone walls and terracotta tiled floors provide a picturesque Mediterranean style setting for relaxation and entertainment or simply enjoying your morning coffee. Commuters will appreciate the proximity to major Northern centres, making it an ideal location for work and leisure. Also within a short drive, you'll find desirable pubs and eateries to enjoy, while the neighbouring village of Ackworth offers convenient amenities such as supermarkets for your daily needs.


Additional Information
Tenure:
Leasehold
Lease Years Remaining:
967
Council Tax Band:
C

Rooms
Entrance Hallway (Shared)
A solid timber entrance door to the front aspect and internal private timber door opens to the lounge.
Lounge
The focal point of this welcoming reception room is the feature fire place housing a log burner, another feature is a timber framed window with decorative shutters to front aspect overlooking St Mary's Church. There is hardwood floor, gas central heating radiator, exposed timber beams, spotlights to the ceiling, a useful storage cupboard and a door to the stairs leading to the first floor landing.
Kitchen/Dining
Having a range of high and low base cupboard units with timber effect worktops, inset ceramic one and a half bowl sink with drainer, mixer tap over and tiled splashbacks. A Range cooker with extractor fan over, space and plumbing for an automatic washing machine, dishwasher plus space for a fridge freezer. Inset spotlights to ceiling. There is a tiled floor, gas central heating radiator and timber glazed window overlooking the rear courtyard.
Rear Porch
Having exposed stone walls, mosaic tile flooring and having access to the kitchen. An external timber frame door with opaque glazed panels opening to the rear courtyard.
First Floor Landing
Doors to first floor rooms and stairs to the second floor.
Bedroom
Having a timber framed window to the front aspect, two useful storage cupboards, central heating radiator and exposed timber beams to ceiling.
House Bathroom
A gorgeous Victorian style bathroom having a mosaic tiled floor, pedestal hand wash basin with chrome taps, wood framed window to rear aspect, central heating radiator, high flush WC, and a freestanding roll edge ball and claw foot bath with mixer tap and shower attachment over.
Second Floor Landing/Study Area
Having exposed timber beams to ceiling, wood effect flooring and access to the en suite shower room.
Attic Bedroom
Having exposed timber beams to ceiling, timber framed window overlooking the front aspect, wood effect floor, central heating radiator and range of display shelves.
En-Suite Shower Room
A three piece suite comprising WC, pedestal hand wash sink and walk in shower unit.
External
There is a tiered outside living space, having brick and feature stone boundary walls with terracotta tiled courtyard on two levels along with decorative borders having a range of shrubs and flowers.

Mortgage calculator

Calculate Your Stamp Duty
£
Results
Stamp Duty To Pay:
Effective Rate:
Tax Band % Taxable Sum Tax

Main Street, Badsworth, Pontefract, WF9

Struggling to find a property? Get in touch and we'll help you find your ideal property.