Hood Street, Nottingham, Nottinghamshire, NG5

£180,000 | Available

2 bedroom House For Sale

or call 0115 9245464
Standout Features

Property Description

WHITEGATES welcome to the market this charming terrace house positioned in a sought-after neighbourhood, boasting a delightful blend of modern convenience and period features. New windows and doors fitted within the last 2 years! The property offers two generously sized bedrooms, perfect for a small family or professionals seeking a stylish living space. The interior is tastefully designed with a cosy living room, a well-appointed kitchen, and a family bathroom. Outside, a spacious garden very rare for this style of house. Located just a stone’s throw from Sherwood’s vibrant high street, residents can benefit from easy access to local amenities, schools, and transport links. With its desirable features and prime location, this property presents an excellent opportunity for those seeking a comfortable and convenient lifestyle. Contact us today to arrange a viewing and secure your dream home.


Additional Information
Tenure:
Freehold
Council Tax Band:
A

Rooms
Living Room
Located to the front aspect of the property with beige carpet throughout, UPVC double glazed window, new front door.
3.4m x 3.38m
Dining Room
Beige carpet throughout, UPVC double glazed window, access to the cellar and upstairs.
3.38m x 3.4m
Kitchen
A mix of wall and base units in cream with a wood effect worktop, sink with mixer tap, tiled splashback walls and access to the garden. UPVC double glazed window.
2.92m x 1.85m
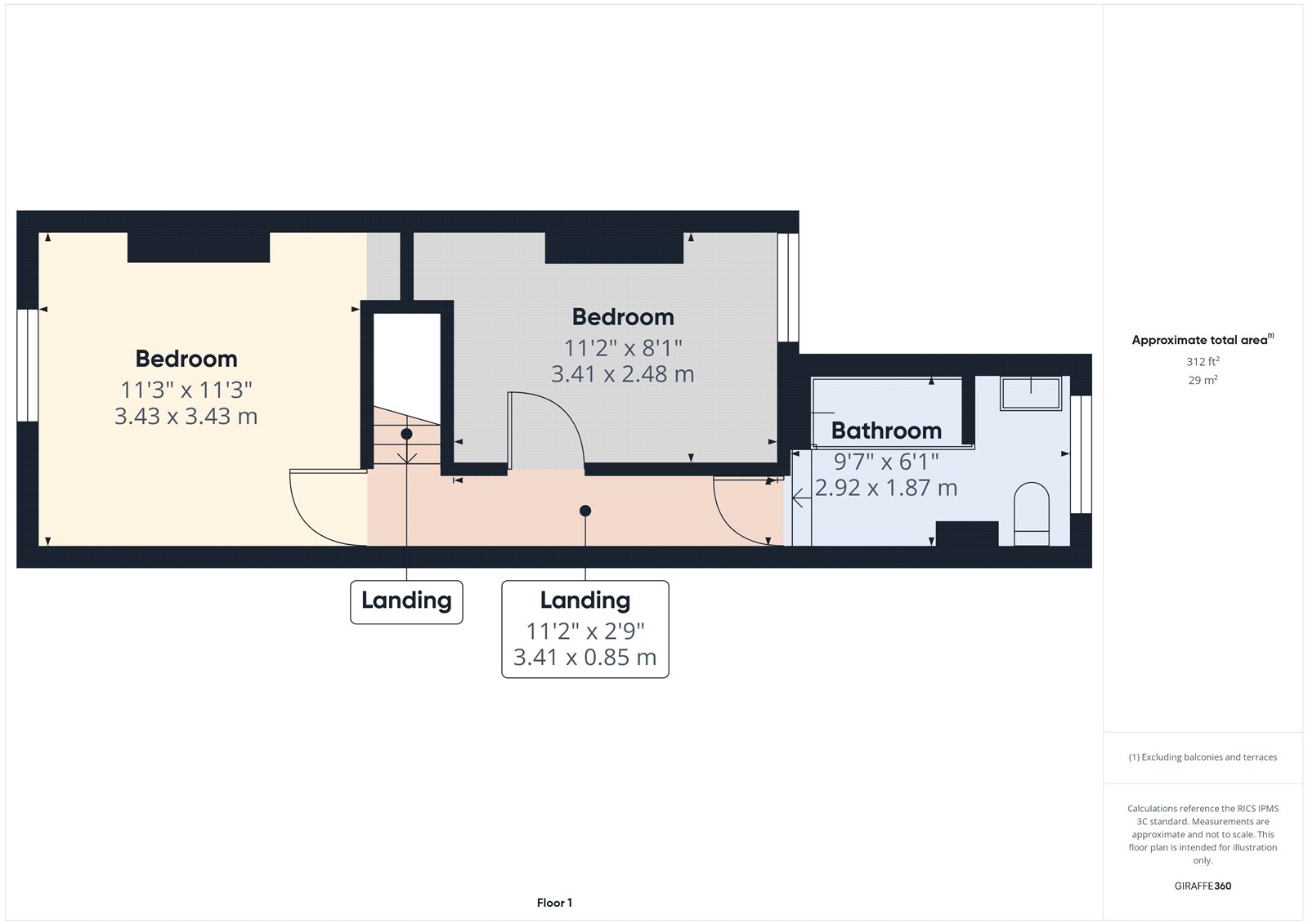
Bedroom
Master bedroom to the front of the property, beige carpets, UPVC double glazed window, shelving units.
3.43m x 3.43m
Bedroom
Double bedroom to the rear of the property, beige carpets, UPVC double glazed window, shelving units.
3.4m x 2.46m
Bathroom
Family bathroom with fitted bath and overhead shower and shower screen, tiled walls around the bath, vinyl flooring, low level WC and hand basin, frosted glass UPVC double glazed window.
2.92m x 1.85m

Mortgage calculator

Calculate Your Stamp Duty
£
Results
Stamp Duty To Pay:
Effective Rate:
Tax Band % Taxable Sum Tax

Hood Street, Nottingham, Nottinghamshire, NG5

Struggling to find a property? Get in touch and we'll help you find your ideal property.