West Farm Avenue, Leeds, West Yorkshire, LS10

£330,000 | SSTC

4 bedroom House Sold STC

or call 0113 277 1234
Standout Features

Property Description

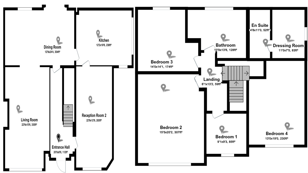
Whitegates are delighted to present this attractive four-bedroom semi-detached house, offered for sale in good condition and located in a sought-after area renowned for its excellent local amenities and convenient access to Middleton Park, John Charles Sports Centre, and the White Rose Shopping Centre. This property is ideally situated for families and professionals, boasting strong public transport links, reputable nearby schools, and scenic walking routes. Upon entry, you are welcomed by two generous reception rooms, both filled with natural light from large windows and providing versatile spaces for relaxation and entertaining guests. The first reception room features French doors leading into a well-proportioned dining room, which benefits from patio doors opening directly onto the rear garden—an ideal setting for family meals and social gatherings. Both the living room and dining room are enhanced by solid oak wood flooring, adding a touch of character and quality. The second reception room also offers built-in storage for added convenience. The modern kitchen enjoys ample natural light, providing a pleasant setting for meal preparation. The property offers four bedrooms in total. The master bedroom features built-in wardrobes, while another double bedroom benefits from an en-suite shower and a walk-in closet, enhancing the home’s appeal for families seeking extra space and comfort. A further double bedroom provides additional flexibility, while the fourth bedroom is a box room—perfect for use as a nursery, study, or dressing room. There is a stylish bathroom with a free-standing bath and built-in storage, ensuring both practicality and comfort. Externally, this property boasts off-street parking, a single garage, and a well-maintained garden, making it perfect for first-time buyers, investors, and families alike. With an EPC rating of D and located within Council Tax Band D, this home combines comfort, convenience, and investment potential in a thriving community setting. Early viewing is highly recommended. Please call us on 0113 277 1234 to get booked in!


Additional Information
Tenure:
Freehold
Council Tax Band:
D

Rooms
Lounge
Coved ceiling. Double glazed window to front. Radiator. Solid oak flooring.
11.6ft x 10.5ft approx
Dining Room
Solid oak flooring. Double glazed window to rear.
18.2ft x8.5ft approx
Sitting Room
Built-in storage. Double glazed window to front. Laminate flooring
10 ft x 9.1ft approx
Kitchen
Base and wall units. Built-in oven with gas hob. Gas cooker point. Double drainer sink unit with mixer tap. Extractor fan. Entrance door to rear. Part tiled walls. Tiled flooring. Double glazed window to front
13.7ft x 8.6ft approx
Master Bedroom
Coved ceiling. Double glazed window to front. Built-in wardrobe. Laminate flooring.
16ft x
Bedroom 2
Laminate flooring. Walk-in wardrobe. Double glazed window to front
21.8ft x 9.5ft approx
En-suite bathroom
Three piece suite. Pedestal hand wash basin with vanity. Low level WC. Part tiled walls. Step-in shower cubicle.
Bedroom 3
Double glazed window to rear. Radiator. Coved ceiling. Carpet
Bedroom 4
Double glazed window to front. Laminate flooring
Bathroom
Four piece suite. Free standing bath. Pedestal hand wash basin with vanity. Low level flush WC. Extractor fan. Tiled flooring. Fully tiled walls. Step-in shower cubicle. Double glazed window to front. Radiator.
Council tax band
D

Mortgage calculator

Calculate Your Stamp Duty
£
Results
Stamp Duty To Pay:
Effective Rate:
Tax Band % Taxable Sum Tax

West Farm Avenue, Leeds, West Yorkshire, LS10

Struggling to find a property? Get in touch and we'll help you find your ideal property.