Standout Features
- CLOSE TO M1
- LARGE GARAGE
- PRIVATE PLOT
- CONSERVATORY
- HOME OFFICE
- OFF STREET PARKING
Property Description
**Stunning 3-Bedroom Detached House with Large Detached Garage and Off-Street Parking**
Presenting this exquisite 3-bedroom detached house located in a sought-after neighbourhood just a five minute drive to the M1. Boasting a spacious interior, this property offers a comfortable and modern living space perfect for families.
The ground floor features a bright and airy living room, a fully-fitted kitchen with integrated appliances, separate utility room, an office with built in desks, a large conservatory with heated flooring, leading out to the charming, well landscaped garden. Upstairs, you will find a family bathroom and three well-proportioned bedrooms, including a master bedroom with an en-suite bathroom.
Additional highlights of this property include a double garage, perfect for securely parking your vehicles, and off-street parking for added convenience.
Situated close to local amenities, schools, and transport links, this property offers the perfect blend of comfort and convenience. Don't miss the opportunity to make this stunning house your new home. Contact us today to arrange a viewing.
Additional Information
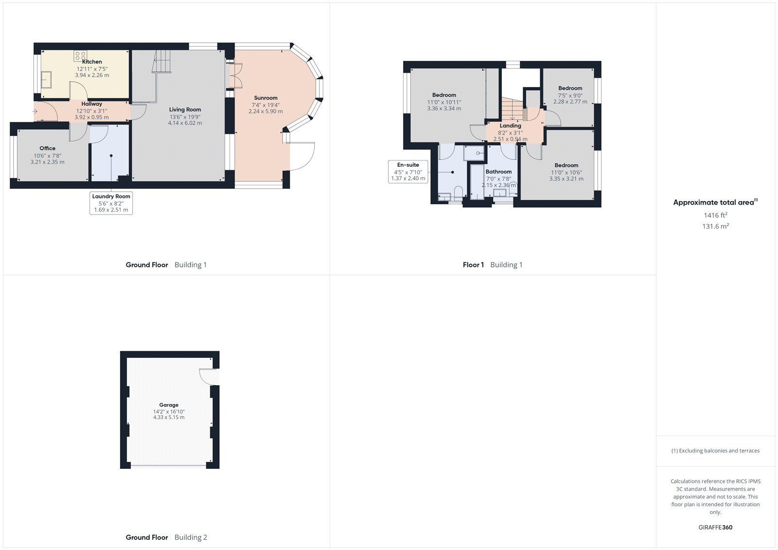
Rooms
Hallway
Entrance to the property with access to the Office, kitchen and utility room, wood flooring throughout, radiator.
3.9m x 0.94m
Kitchen
A mix of wall and base units in wood, build in separate grill and oven, gas hob, extractor fan, sink with swan neck tap, tiled flooring and a double glazed window.
3.94m x 2.26m
Office
Ample built in desks and cupboards, carpeted flooring, radiator and double glazed window.
3.2m x 2.34m
Utility Room
Located off the office, half tiled walls, fitted wall and base cupboards, plumbing for a washing machine, wall hung towel radiator.
1.68m x 2.5m
Living Room
Wood flooring that flows from the hallway, fireplace, access to the conservatory, double aspect windows to provide natural light, two radiators and has the stairs in the room.
4.11m x 6.02m
Sunroom
P shaped spacious conservatory with double glazed windows to match the rest of the property, tiled flooring with underfloor heating, provides access to the garden.
5.9m x 2.24m
Bedroom
Master bedroom located to the front of the property with carpeted flooring, ample amount of fitted wardrobes, double glazed window and access to the ensuite.
3.35m x 3.33m
Ensuite Bathroom
Located off the master bedroom, with a walk in shower, low level WC and hand basin, chrome towel rail, tiled flooring.
1.35m x 2.4m
Bedroom
Double bedroom with carpeted flooring, double glazed window and radiator.
3.35m x 3.2m
Bedroom
Single bedroom with build in wardrobes, carpeted flooring, double glazed window and radiator.
2.26m x 2.74m
Mortgage calculator
Monthly Repayments:
£
Are you ready to take the next step?
Speak with one of our team and we can help you find out your affordability.
All fields must be numbers
Calculate Your Stamp Duty
Results
Stamp Duty To Pay:
Effective Rate:
| Tax Band |
% |
Taxable Sum |
Tax |
Blackfriars Close,
Nuthall,
Nottingham,
Nottinghamshire,
NG16
Struggling to find a property? Get in touch and we'll help you find your ideal property.