Burford Road, Nottingham, Nottinghamshire, NG7

£300,000 | Available

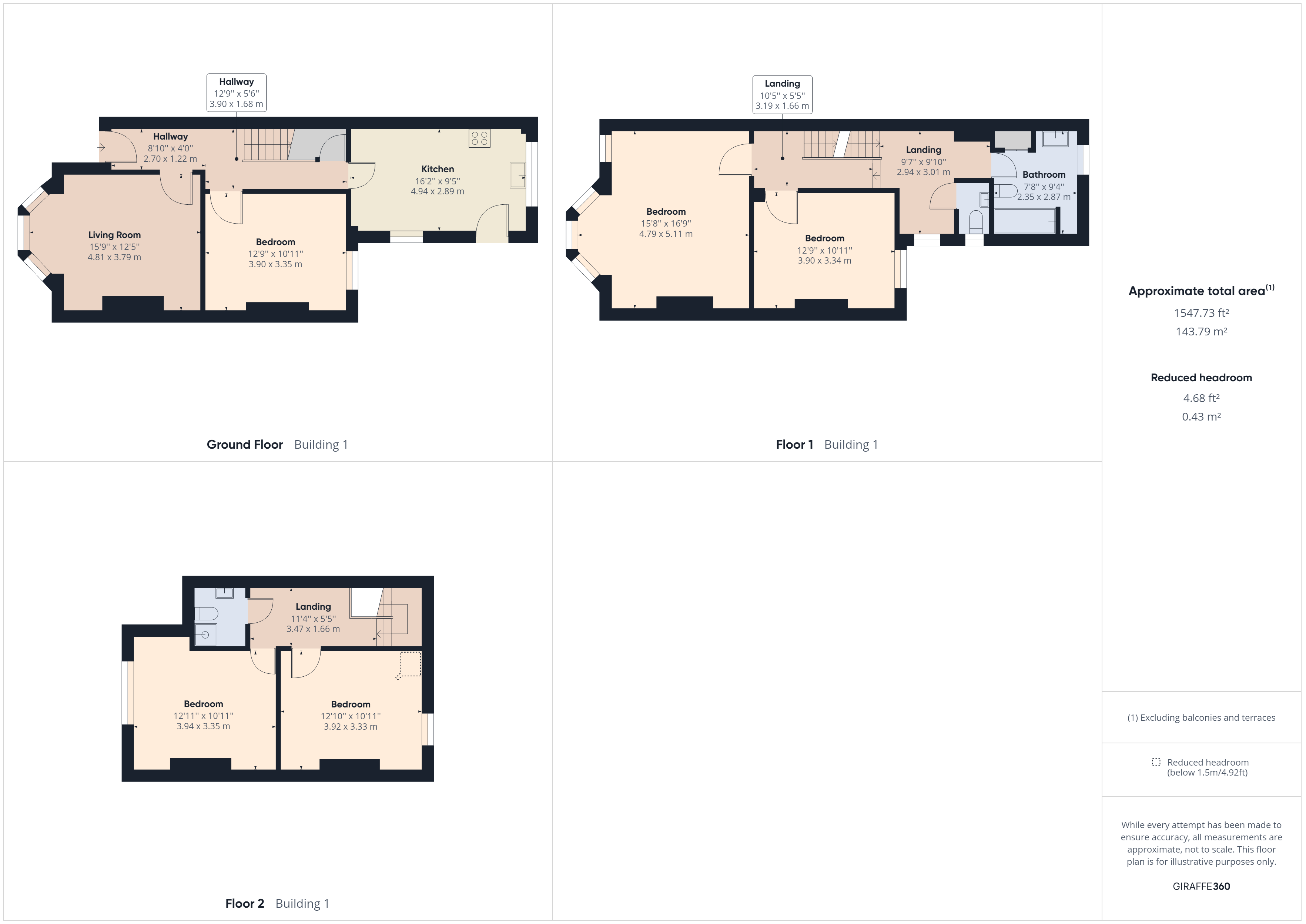
5 bedroom House For Sale

or call 0115 9245464
Property Description

Large 5 Bedroom House with a HMO licence in a sought after area for students! Perfect for investors looking to extend their portfolio, this 5-bedroom property is located within the popular Forest Field area within walking distance to the Forest Recreation Ground. Known for its vibrant student community and easy access to public transport, local amenities and the university campus. This property features a large hallway, five large double bedrooms, each offering adequate space for studying and relaxation, two modern bathrooms, contemporary kitchen with access to the rear garden and large living room. The front of the property offers a small front yard and on street parking. Virtual tour available! Council Tax Band B. Please contact us to arrange a highly recommended viewing!


Additional Information
Tenure:
Freehold
Council Tax Band:
B

Mortgage calculator

Calculate Your Stamp Duty
£
Results
Stamp Duty To Pay:
Effective Rate:
Tax Band % Taxable Sum Tax

Burford Road, Nottingham, Nottinghamshire, NG7

Struggling to find a property? Get in touch and we'll help you find your ideal property.